Committed to excellence, we partner with industry leaders to successfully deliver exceptional buildings and developments that ensure lasting success.
Celebrating decades of industry experience and knowledge, we have a proven track record in delivering renowned assets About
View Project
The Werona
Gordon
https://cpdm.com.au/projects/the-werona-2/
$400M
SSDA
View Project
The Cowles
Mosman
https://cpdm.com.au/projects/the-cowles/
$220M
DA
View Project
The Nulla 2
Turramurra
https://cpdm.com.au/projects/the-nulla-2/
$280M
SSDA
View Project
The Avalon
Avalon
https://cpdm.com.au/projects/the-hume/
$11M
Construction Commencing
View Project
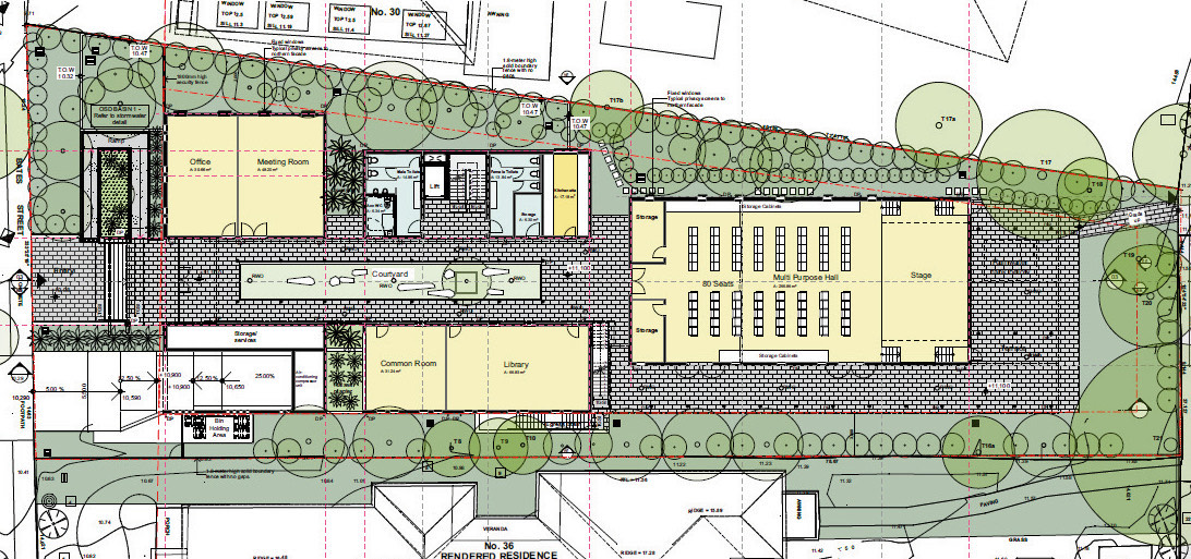
Hwa Tsang Monastery
Homebush
https://cpdm.com.au/projects/hwa-tsang-monastery-2/
$10m
Construction Commenced
View Project
The Hume
Castle Hill
https://cpdm.com.au/projects/the-hume-2/
$40M
DA
close
Castle Hill
Castle Island
| Value: | |
|---|---|
| Status: | |
| Type: | |
| Project site: |
project gallery
Let's create something exceptional
Get in touch today